It appears the third time is the charm for a multi-unit development proposed in Rothesay.
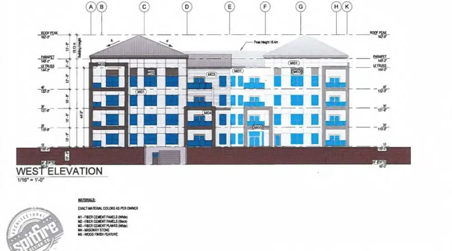
Council has given its early support for a four-storey, 48-unit building on Holland Drive.
Developer Andrew Baskin has tried two other times to get the site rezoned for development.
However, councillors rejected both applications over concerns about the heights of the buildings.
During a recent discussion on Baskin’s latest application, Coun. Tiffany Mackay French reflected on comments she heard during a recent Federation of Canadian Municipalities (FCM) event.
“After coming back from the FCM and hearing loud and clear from the top level of government that we are responsible for housing, we need to push it and it needs to be pushed really hard.”
“Housing is the number one priority and there’s a lot of growth. I do think this is a good project.”
Mayor Nancy Grant said she also supports this project and thanked the developer for considering their concerns.
“I really appreciate the reduction in height,” said Grant. “We need housing, we need housing, and I appreciate the fact that there’s affordable housing included here.”
Council first turned down a proposed two-building, 96-unit development on Holland Drive in December 2021.
The town bylaw requires developers to wait one year before reapplying unless their new plan is “significantly” different.
The developer came back with a revised proposal for a single five-storey 48-unit building, hoping to avoid the waiting period, but that plan was also rejected.
Council approved the first two readings of the required zoning bylaw during their meeting on June 12. Helen Boyle was the only councillor to vote against the proposed development.
The third and final reading of the rezoning bylaw is set to take place during council’s July meeting.




